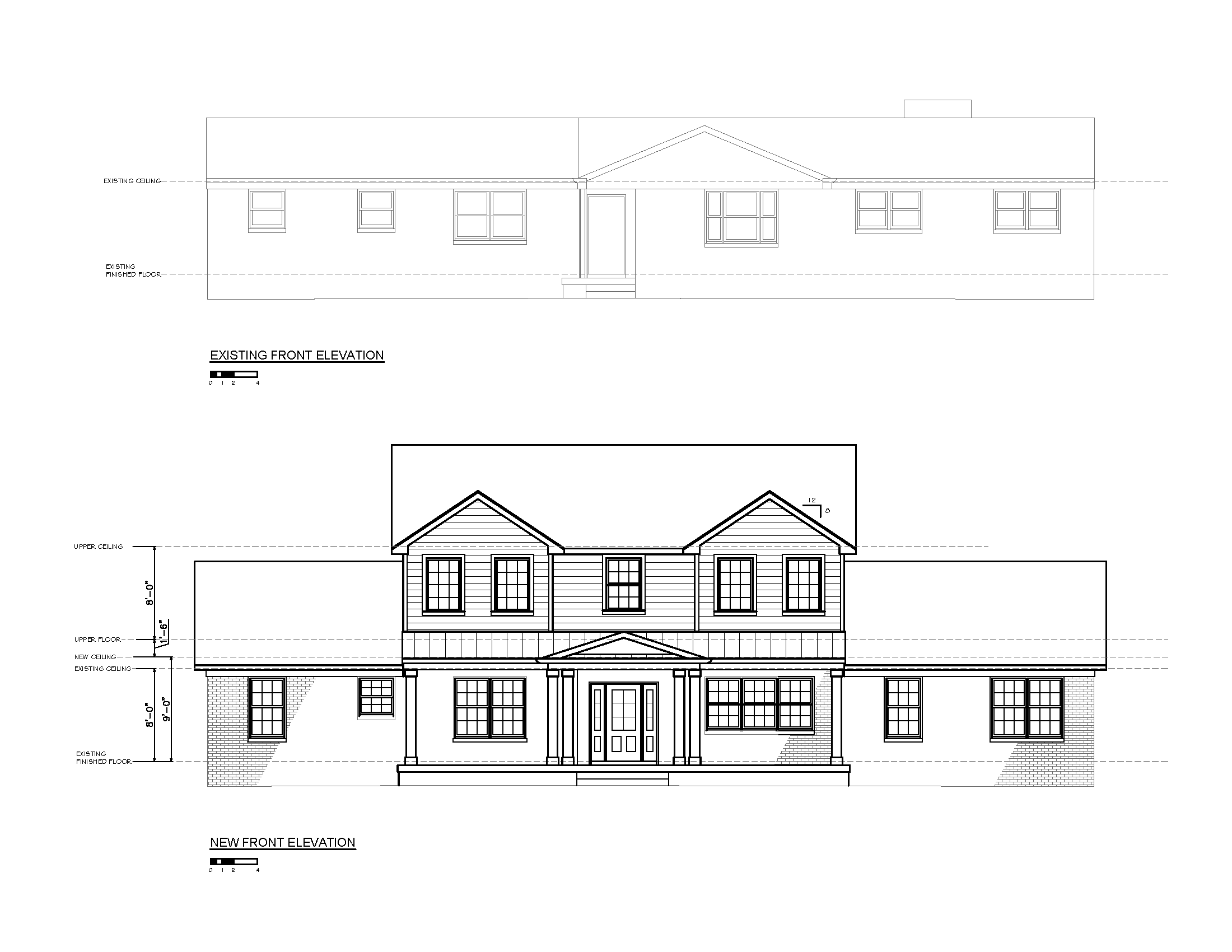
Crieve Hall Ranch Remodel

This 1950's house started out as a well-maintained duplex, and had a lot of spaces that were reusable for the new owners. But they wanted a major facelift for the house in a more modern farmhouse style. The new plans kept most of the bedroom and bath space on the far ends of the house and focused on reworking the central spaces, including adding an upper floor. Creative and thoughtful reuse allowed this house to have continued life for its new family.

Previous
Previous

Franklin Kitchen Renovation